
— 磁铁价格 —
好色TVAPP磁铁公司座机电话: 0769-23388351 邮箱:salesa@dgcourage.com
手机:0769-23388351
电话:0769-23388351
地址:广东省东莞市万江区新和社区龙通一路1号厂房
发布时间:2016-08-31 01:32:48 人气:2027
东莞好色TVAPP磁铁生产厂家免费提供磁瓦(磁钢)价格,磁瓦批发价格,磁瓦打样价格,如果您有磁瓦(铁氧体磁瓦 钕铁硼磁瓦)定制询价打样问题,欢迎咨询。
发电磁钢多少钱一片?

发电磁钢的价格跟您所需的性能、耐温及数量因素有关,具体欢迎咨询。小编电话:13602300940 QQ:2355933625(有图纸最好提供图纸,谢谢!)
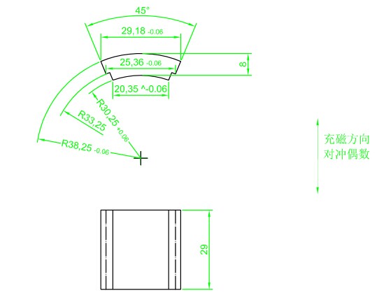
近日,一石家庄客户找到好色TVAPP,需要订做的是发电永磁体-钕铁硼磁钢。一组上面用8片,磁钢要求耐温比较高,最少需达180℃,了解客户各方面需求后,好色TVAPP这边给出报价,客户那边接受并让发公司账户那边安排财务转款。
规格R38.25*r30.25*45度*L29,不含税28.5元,打样50/片。
文章钕铁硼磁瓦价格仅供参考,如您有磁铁报价需求,欢迎联系小傅。更多磁铁价格http://www.dingjivip.com/jiage/
免责声明:本网站部分图片,文章来源于其它媒体与网站,版权归原作者/发布机构所有,转载是出于更多分享之目的,如转载稿件涉及版权等问题,请联系好色TVAPP,好色TVAPP将及时删除处理。
文章推荐